Haus zum Kauf in Weeze

RESERVIERT! Renovierungsbedürftiges Einfamilienhaus mit 5 Garagen in Weeze

239.000 €

Kaufpreis
  • 134 m²

    Wohnfläche (ca.)
  • 9

    Zimmer
  • 666 m²

    Grundstück (ca.)
  • 30 m²

    Nutzfläche (ca.)

Preise & Kosten

Standort

47652 Weeze

Preise
  • Kaufpreis 239.000 €
Käuferprovision inkl. USt.
0 % Provisionsfrei für den Käufer

Dateien & Unterlagen

Video Youtube

Die Immobilie

Haus zum Kauf
  • Objekt-Nr 20040-2330
  • verfügbar ab nach Absprache
  • Baujahr 1900
  • Zustand teil/vollrenovierungsbedürftig
  • Bad mit Dusche, Wanne
  • Heizungsart Zentralheizung
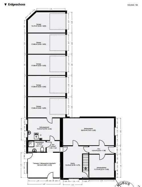
  • Wohnfläche (ca.) 134 m²
  • Zimmer 9
  • Grundstück (ca.) 666 m²
  • Nutzfläche (ca.) 30 m²
  • Dachboden
  • Abstellraum
  • Wintergarten
  • Provisionspflichtig
Stellflächen
  • Anzahl Stellplätze 6
  • Stellplätze 1
  • Garagenanzahl 5
Räume und Flure
  • Anzahl Schlafzimmer 4
  • Anzahl Badezimmer 2
  • Anzahl Terrassen 1

Ihr Ansprechpartner

Ihr Niederrhein Makler

Sabine Knauf

Telefon: 028387767737

Anbieter Impressum

Anschrift
Ihr Niederrhein MaklerInhaber
Wolfram Büren
Löwenfeld 14
47665 Sonsbeck

 

Geschäftsführer
Wolfram Büren

 

Aufsichtsbehörde
Genehmigung erteilt nach § 34c GeWO
Aufsichtsbehörde ist die Kreisverwaltung Wesel, Bereich Sicherheit und Ordnung, Reeser
Landstraße 31 in 46483 Wesel

 

St.-Nr.
119/5041/1225

 

Telefon
02838-77 67 73-7 o. 0160-96 28 44 67

 

Fax
02838-77 67 73-9

 

Mail
info@ihr-niederrhein-makler.de info@ihr-niederrhein-makler.de

 

Bild- und Urheberrechte

© romman

Verbraucherinformationen:
Online-Streitbeilegung gemäß Art. 14 Abs. 1 ODR-VO: Die Europäische Kommission stellt eine Plattform zur Online-Streitbeilegung (OS)
bereit, die Sie hier finden: https://ec.europa.eu/consumers/odr  

Verbraucherinformation zur Schlichtungsstelle:
Ombudsmann Immobilien im IVD
Wolfgang Ball
– Ombudsstelle –
Littenstraße 10, 10179 Berlin
Fax: 030 / 27 57 26 78
E-Mail: info@ombudsmann-immobilien.net
www.ombudsmann-immobilien.net

Ihre Anfrage

Energiebedarfsausweis

0255075100125150175200225250
332 kWh/(m²*a)
  • Endenergiebedarf 332 kWh/(m²*a)
  • Befeuerungsart Gas
  • Energieeffizienzklasse H
  • Gültig bis 31.08.2035
  • Energieausweis 2014
  • Energieausweis Ausstellungsdatum 01.09.2025